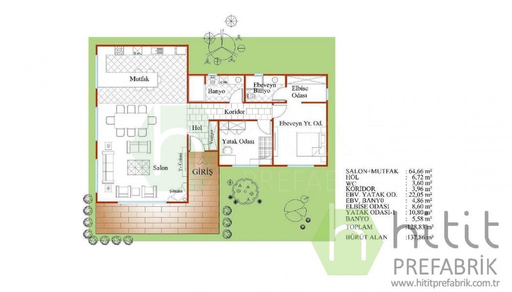
Yerleşim ve Teknik Bilgiler2 ODA / 1 SALONBrüt Alan: 137m²Plan Kat: 1Avcı KlubesiBağ EviÇelik EvDağ EviEkonomik EvHaftasonu EviHobi BahçesiKır EviKonutKooperatifKöy EviManzara EviMüstakil EvYayla EviYazlık EvÇelik Evler